VILLA BIFAMILIARE SANGIANO
€195.000,00
via 4 Novembre 17, Sangiano (VA)
180 mq
6 locali
2 bagni
2 PianI
Descrizione
Vendesi Villa Bifamiliare con Giardino – Ottima Opportunità
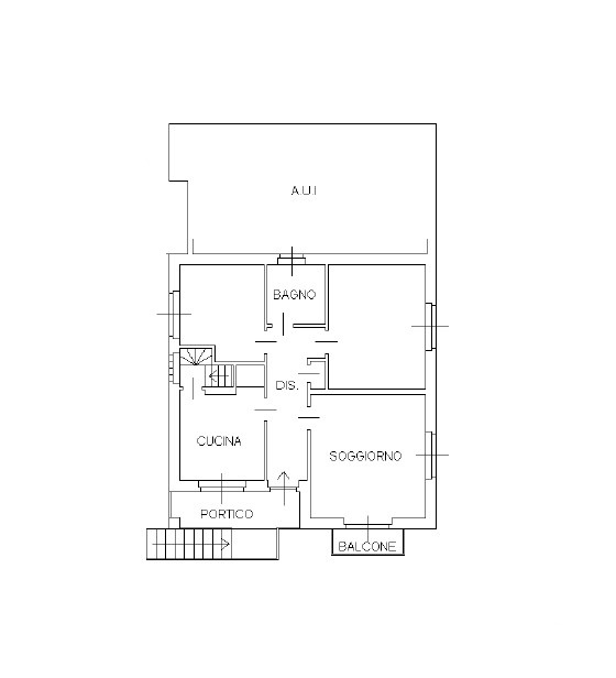
In vendita villa bifamiliare composta da 2 appartamenti trilocali, ciascuno così strutturato:
- Soggiorno
- Cucina
- Due camere da letto
- Bagno
- Balcone
Completano la proprietà:
- Cantina di circa 30 mq per ogni appartamento
- Giardino di 1.500 mq in condivisione
- Garage doppio
- Tettoia
Gli appartamenti sono da ristrutturare, ideali per chi desidera personalizzare gli spazi o per investimento.
È possibile acquistare le unità anche separatamente al prezzo di € 99.000 ciascuna.
In caso di vendita separata, garage e tettoia saranno oggetto di trattativa a parte.
Caratteristiche
| codice annuncio: | 024 |
| citofono: | sì |
| condizioni: | da ristrutturare |
| numero di bagni: | 2 bagni |
| numero di balconi: | 2 |
| numero di camere da letto: | 4 |
| numero di locali: | 6 locali |
| classe energetica: | g |
| indice rinnovabile: | 0.14 KWH/M²A |
| EP globale: | 81.99 KWH/M²A |
| tipo di riscaldamento: | autonomo |
Classe Energetica































