APPARTAMENTO MONTEGRINO VALTRAVAGLIA
€119.000,00
Via Pineta 6, Montegrino Valtravaglia
90 mq
3 locali
1 bagno
1°Piano
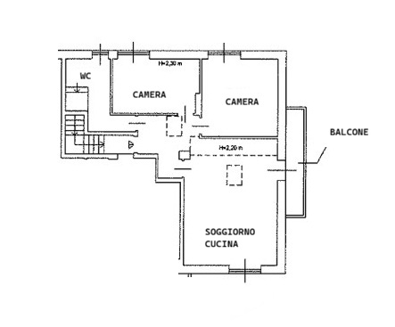
Descrizione
Trilocale luminoso con balcone panoramico e ampio giardino condominiale
In vendita appartamento di circa 90 mq al 1° piano in minicondominio di sole 4 unità, senza spese condominiali.
Composto da:
- ampio soggiorno con angolo cottura e caratteristico soppalco,;
- camera matrimoniale;
- cameretta,
- bagno;
- locale sottotetto ad uso deposito,
- giardino in comproprietà.
Tripla esposizione con velux aggiuntivi che garantiscono grande luminosità. Balcone con splendida vista sulla vallata.
In comproprietà circa 2000 mq di terreno: metà adibito a parcheggi liberi e metà a giardino condominiale ideale per barbecue, bambini e animali.
Immobile in buono stato, pronto da abitare.
Caratteristiche
| codice annuncio: | 023 |
| citofono: | sì |
| condizioni: | buone |
| numero di bagni: | 1 |
| numero di balconi: | 1 |
| numero di camere da letto: | 2 |
| numero di locali: | 3 locali |
| classe energetica: | F |
| indice rinnovabile: | 0.14 KWH/M²A |
| EP globale: | 81.99 KWH/M²A |
| tipo di riscaldamento: | autonomo |
Classe Energetica



























