APPARTAMENTO LUINO – VOLDOMINO
€55.000,00
Via Gorizia 4, lUINO
65mq
2 locali
1 bagno
T Piano
Descrizione
🏡 Appartamento in vendita a Voldomino – Luino (VA)
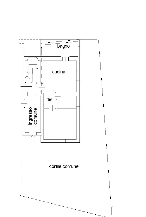
In tranquilla zona residenziale, proponiamo appartamento al piano terra situato in minicondominio di sole 4 unità abitative, senza spese condominiali.
L’abitazione è composta da:
- soggiorno con angolo cottura,
- camera matrimoniale,
- cameretta,
- bagno con finestra.
Dispone inoltre di un cortile comune dove è possibile parcheggiare, oltre a un parcheggio libero e gratuito situato a pochi metri dall’appartamento, comodo per ospiti o per chi possiede più veicoli.
L’appartamento è stato abitato fino a poco tempo fa pur necessitando di diversi interventi di ristrutturazione.
Ottima opportunità sia come abitazione principale, sia come investimento a reddito, grazie alla posizione comoda e alla totale assenza di spese condominiali.
✅ Punti di forza:
Ideale anche per investimento a rendita
Piano terra, comodo e funzionale
Nessuna spesa condominiale
Parcheggio in cortile e ulteriore parcheggio libero a pochi metri
Contesto tranquillo e ben servito
Minicondominio (solo 4 unità)
Caratteristiche
| codice annuncio: | 020 |
| citofono: | sì |
| condizioni: | da ristrutturare |
| numero di bagni: | 1 |
| numero di balconi: | assente |
| numero di camere da letto: | 2 |
| numero di locali: | 2 locali |
| classe energetica: | G |
| indice rinnovabile: | 311.13 KWH/M²A |
| EP globale: | 311.13 KWH/M²A |
| tipo di riscaldamento: | autonomo |
Classe Energetica














