VILLA NUOVA COSTRUZIONE – BREZZO DI BEDERO
LOCALITà CANONICA, BREZZO DI BEDERO
€550.000,00
170 mq
4 locali
2 bagni
2 Livelli
🏡 Vendesi Villa indipendente di nuova costruzione con piscina
In posizione panoramica e tranquilla, nella suggestiva località Canonica di Brezzo di Bedero, proponiamo in vendita una villa indipendente di nuova costruzione con piscina privata e ampio giardino.
La proprietà, progettata con particolare attenzione al comfort abitativo e all’efficienza energetica, sorge in un’area residenziale soleggiata e silenziosa, con vista aperta sulle colline del Villaggio Olandese, a pochi minuti dai principali servizi, dal centro di Luino e dal confine con la Svizzera.
Una residenza moderna, elegante e personalizzabile, perfetta come abitazione principale o casa vacanze sul Lago Maggiore.
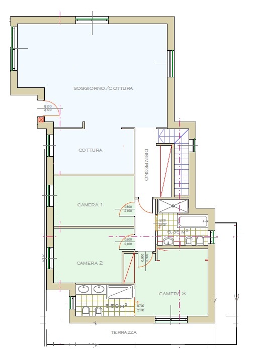
Piano Terra
- Ampio soggiorno con cucina a vista, caratterizzato da grandi aperture verso il portico e il giardino;
- Tre camere da letto spaziose e luminose;
- Due bagni, entrambi finestrati e rifiniti con materiali di qualità;
- Terrazzo panoramico e piscina privata con zona solarium.
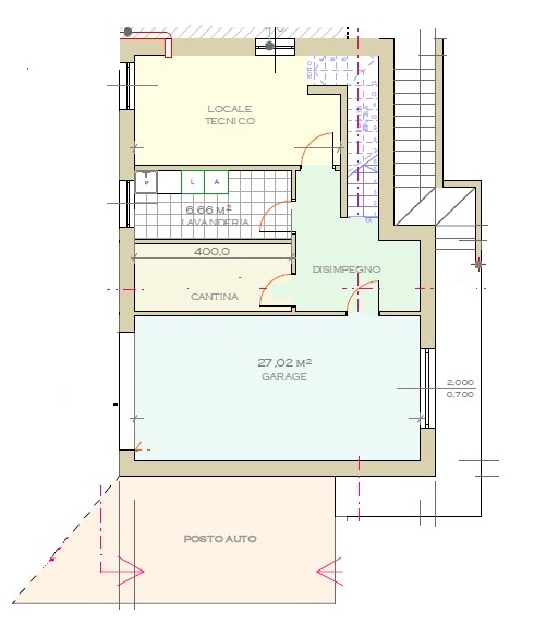
Piano Seminterrato
Locale lavanderia;
Cantina;
Garage doppio con accesso diretto all’abitazione;
Posto auto.
L’immobile è attualmente in fase di progetto, offrendo così la possibilità al futuro proprietario di personalizzare integralmente la distribuzione degli spazi interni, le finiture e i materiali, per creare una residenza unica e su misura.
Caratteristiche
| codice annuncio: | 019 |
| citofono: | sì |
| condizioni: | in costruzione |
| numero di bagni: | 2 bagni |
| numero di balconi: | 1 terrazzo |
| numero di camere da letto: | 3 |
| numero di locali: | 4 locali |
| classe energetica: | in fase di realizzo |
| indice rinnovabile: | |
| EP globale: | |
| tipo di riscaldamento: | autonomo |














