QUADRILOCALE – LUINO CENTRO
€200.000,00
LUINO, VIALE AMENDOLA 38
100 mq
4 locali
1 bagno
5°Piano
Descrizione
Luminoso Quadrilocale Panoramico con Vista Lago – Luino
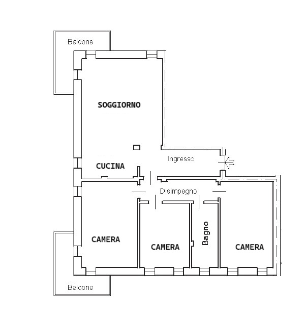
In zona centralissima di Luino, a pochi metri dal lungolago e da tutti i principali servizi, proponiamo in vendita ampio e luminoso appartamento quadrilocale al quinto piano con splendida vista panoramica sul Lago Maggiore.
Caratteristiche principali:
Superficie ben distribuita con:
2 camere da letto matrimoniali
1 cameretta, ideale come studio, lavanderia o secondo bagno
Ampia zona giorno open space con cucina e soggiorno
Bagno finestrato
Balcone panoramico
Cantina al piano interrato
Posti auto condominiali riservati
L’appartamento è stato in parte ristrutturato ed è pronto per essere abitato, ma offre ancora margine di personalizzazione: perfetto per chi desidera creare una soluzione su misura in una delle località più affascinanti del Lago Maggiore.
Costi di gestione:
Spese condominiali mensili: € 165,00
Spese annuali per riscaldamento e acqua: circa € 1.200,00

Caratteristiche
| codice annuncio: | 016 |
| citofono: | sì |
| condizioni: | ottime |
| numero di bagni: | 1 bagno |
| numero di balconi: | 2 |
| numero di camere da letto: | 3 |
| numero di locali: | 4 locali |
| classe energetica: | D |
| indice rinnovabile: | 1.22 KWH/M²A |
| EP globale: | 135.52 KWH/M²A |
| tipo di riscaldamento: | centralizzato |
Classe Energetica



























