DUPLEX – LUINO – COLMEGNA
€189.000,00
Via Torretta 44, Luino fraz. Colmegna
135 mq
4 locali
2 bagni
2 livelli
Descrizione
Appartamento Duplex con Vista Lago in Zona Colmegna – Da Ristrutturare
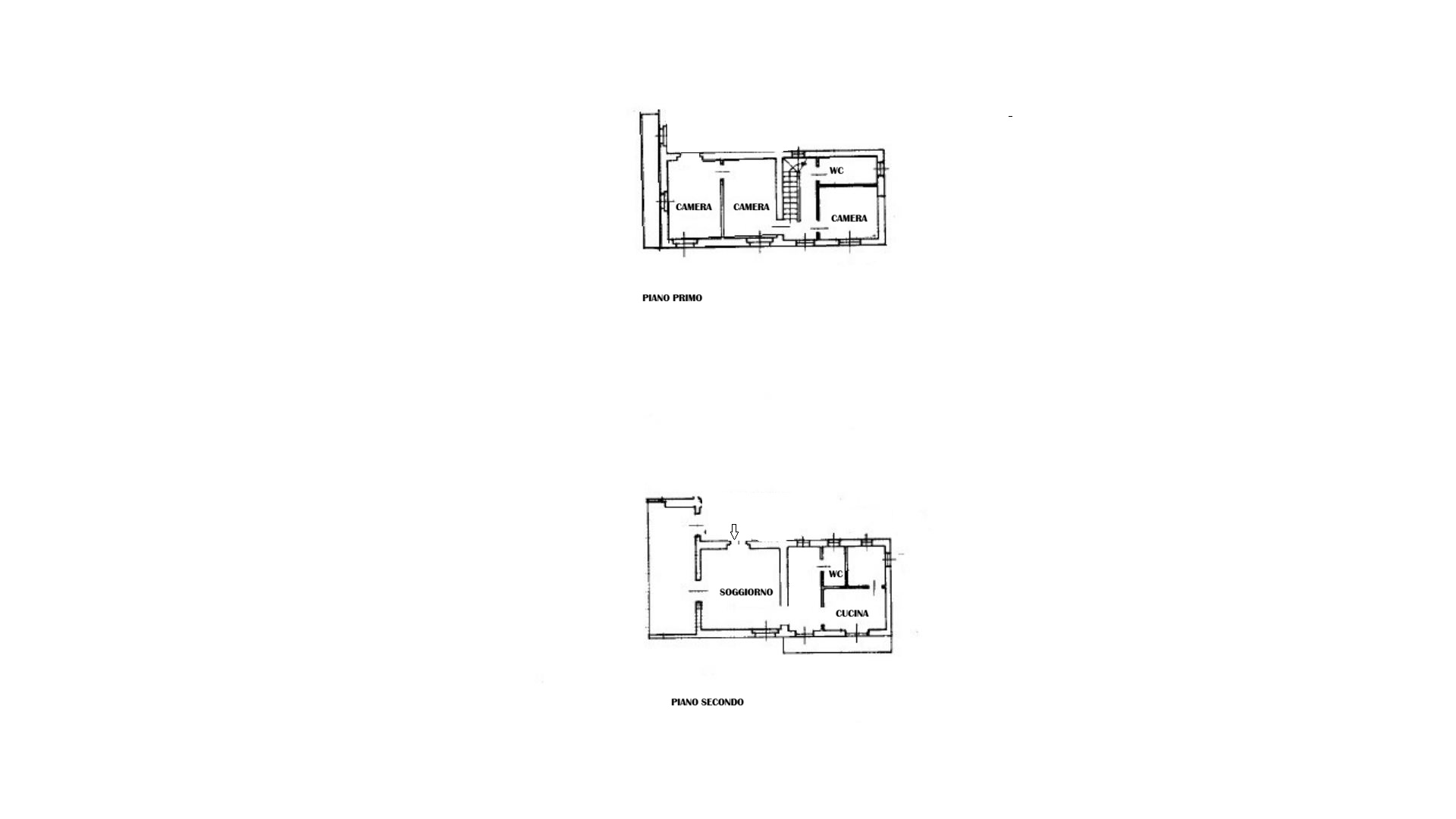
In posizione panoramica nella suggestiva località di Colmegna, proponiamo in vendita appartamento duplex con splendida vista lago, disposto su due livelli.
L’immobile è composto da:
- 3 camere da letto,
- 2 bagni,
- ampio terrazzo panoramico,
- 2 balconi,
- garage di 25 mq.
L’appartamento necessita di interventi di ristrutturazione, offrendo così l’opportunità di personalizzare gli spazi secondo i propri gusti e necessità.
Soluzione ideale sia come prima casa che come residenza per le vacanze, grazie alla vicinanza al lago e alla tranquillità della zona.
Caratteristiche
| codice annuncio: | 015 |
| citofono: | sì |
| condizioni: | da ristrutturare |
| numero di bagni: | 2 bagni |
| numero di balconi: | 2 + terrazzo |
| numero di camere da letto: | 3 |
| numero di locali: | 4 locali |
| classe energetica: | 5 |
| indice rinnovabile: | 0.14 KWH/M²A |
| EP globale: | 200.00 KWH/M²A |
| tipo di riscaldamento: | autonomo |
Classe Energetica












































