VILLA DI TESTA – PORTO VALTRAVAGLIA
€265.000,00
Via Varese 1, Porto Valtravaglia
133 mq
5 locali
2 bagni
3 Livelli
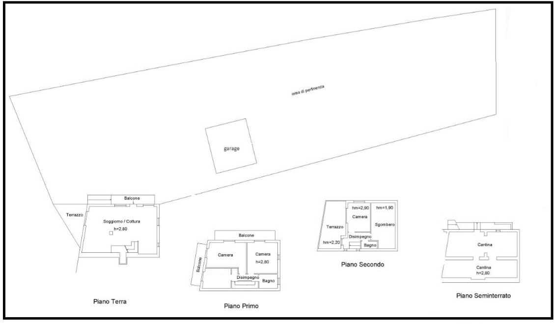
Nel cuore di Porto Valtravaglia, a meno di un chilometro dal suggestivo lungolago, proponiamo in vendita una VILLA DI TESTA con ampi spazi esterni e grande potenziale di personalizzazione.
Caratteristiche principali:
- 3 camere da letto
- 2 bagni
- 2 ampi terrazzi, di cui uno con parziale vista lago
- Giardino privato di circa 1000 mq
- Garage doppio
Stato e Finiture:
L’immobile è da ristrutturare.
Posizione Geografica:
Situata in zona centrale, comoda a tutti i servizi e ben collegata. Il lungolago si raggiunge a piedi in pochi minuti.
Utilizzo e Potenzialità:
Ideale come abitazione turistica o prima abitazione per chi desidera vivere in un contesto tranquillo ma vicino al lago. Il grande giardino offre spazio sufficiente per:
- Realizzare una piscina
- Creare una zona barbecue
- Allestire un’area giochi per bambini o uno spazio dedicato ai propri animali domestici
Una soluzione perfetta per chi cerca un’abitazione da personalizzare a proprio gusto, immersa nella bellezza del Lago Maggiore.
Caratteristiche
| codice annuncio: | 013 |
| citofono: | sì |
| condizioni: | da ristruttuarre |
| numero di bagni: | 2 bagni |
| numero di balconi: | 4 |
| numero di camere da letto: | 3 |
| numero di locali: | 5 locali |
| classe energetica: | 5 |
| indice rinnovabile: | 0.14 KWH/M²A |
| EP globale: | 200.00 KWH/M²A |
| tipo di riscaldamento: | autonomo |
Classe Energetica


































