APPARTAMENTO SEMINDIPENDENTE
€130.000,00
vIA mARGORABBIA, mESENZANA
75 mq commerciali
3 locali
1 bagno
1°Piano
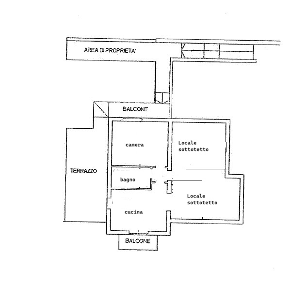
Descrizione
Appartamento IN VENDITA con ingresso indipendente, terrazzo e giardino
In minicondominio di sole due unità, proponiamo appartamento in ottimo stato con ingresso indipendente, soluzione ideale per chi desidera spazi esterni privati e vivibili. L’abitazione è composta da: Cucina abitabile Camera da letto Bagno Due locali sottotetto ad uso accessorio Due balconi Completano la proprietà: Ampio terrazzo di circa 25 mq, ideale per momenti all’aperto Piccolo giardino da adibire ad orto o area verde per animali Due posti auto di proprietà L’immobile si presenta in ottimo stato di manutenzione, senza spese condominiali, ed è inserito in un contesto tranquillo e riservato. L’immobile è situato in via Margorabbia una parallela della via Provinciale di Mesenzana. Soluzione perfetta per coppie o piccoli nuclei familiari e per chi ama vivere la casa anche all’esterno, offrendo spazi sicuri e funzionali per cani e altri animali domestici.
Caratteristiche
| codice annuncio: | 021 |
| citofono: | sì |
| condizioni: | ottime |
| numero di bagni: | 1 |
| numero di balconi: | 2 |
| numero di camere da letto: | 1 |
| numero di locali: | 3 locali |
| classe energetica: | D |
| indice rinnovabile: | 125,81 KWH/M²A |
| EP globale: | 80,35 KWH/M²A |
| tipo di riscaldamento: | autonomo |
Classe Energetica




















